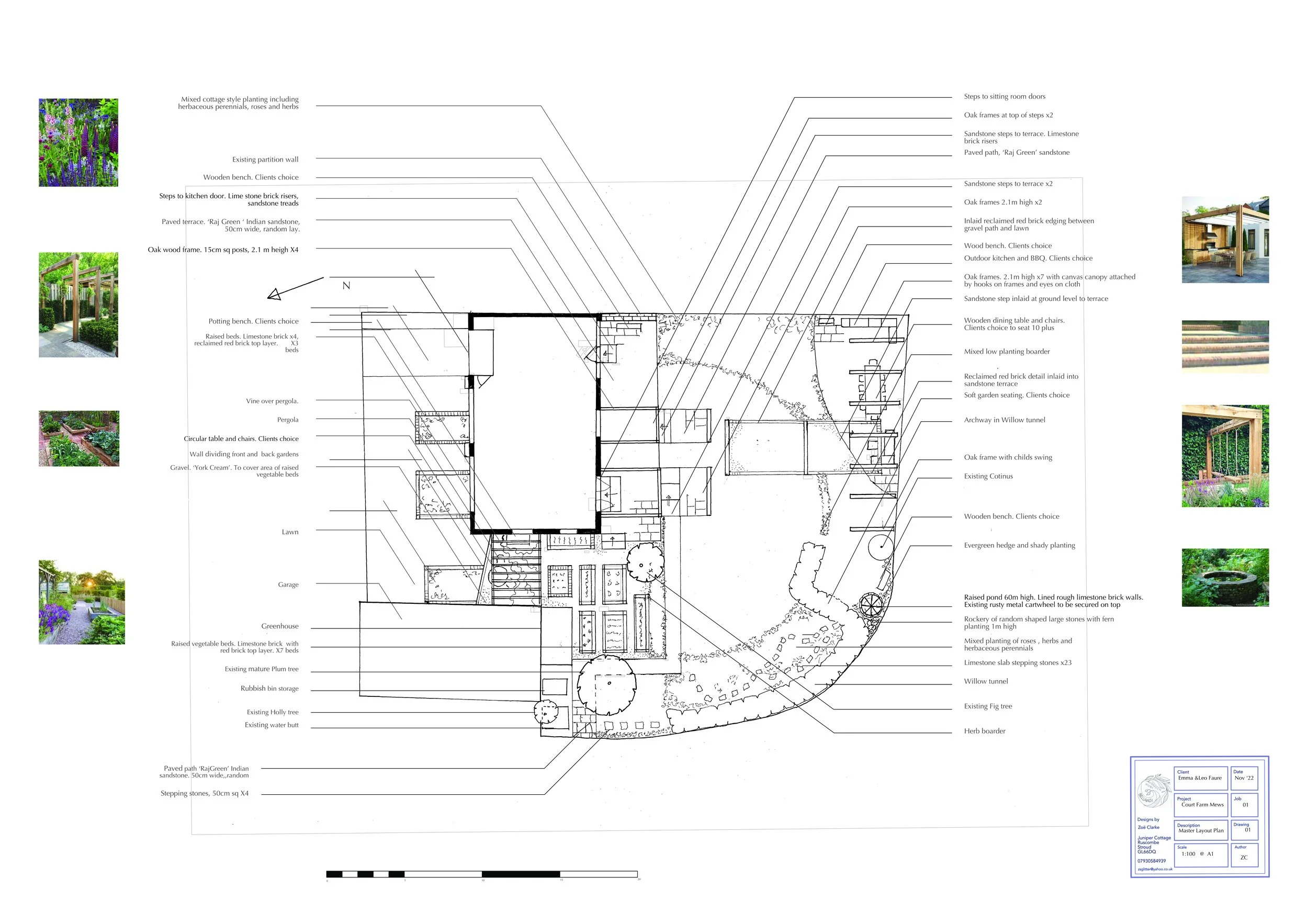
Four gardens completely redesigned

The gardens were entirely different in size, aspect and client requirements. For study purposes a complete garden analysis, development of creative ideas, full Planting Plans and detailed, technical, scaled Master Plans were created.

Previous
Previous

Brunswick House

Next
Next

Sketches